Gallery

                                            

Caratteristiche

ID area AL0260
Consegna fabbricato Novembre 2025
Superficie Edificabile 32472 ㎡
Superficie Disponibile 8500 ㎡
Superficie Lotto 90000 ㎡
Baie di Carico 64
Altezza Sotto Trave 11,50 mt
Richiedi maggiori informazioni

Tangenziale di Catania: 2 km
Aeroporto di Catania: 7 km
Centro di Catania: 10 km

Magazzini logistici a Catania

Nuovi immobili logistici a Catania a 2 km dall'ingresso della Tangenziale.
L'aeroporto e il centro della città distano solamente pochi minuti.

Sono disponibili quattro magazzini con differenti metrature.

Magazzino n.1
Posto su un lotto di 16.110 mq, l'immobile è così composto:

  • magazzino di 5.180 mq, con altezza utile di 11 mt e attrezzato con 6 ribalte monofronte
  • uffici direzionali di 330 mq con ingresso indipendente e servizi
L'immobile è interamente disponibile per la locazione.

Magazzino n.2
Edificato su un terreno di 19.000 mq, l'immobile si compone di:
  • deposito da 6.430 mq, con altezza utile di 11,50 mt e 24 baie di carico
  • uffici di 585 mq con ingresso indipendente e servizi
L'immobile è dotato di impianto Sprinkler.
La superficie disponibile è di 4.000 mq.

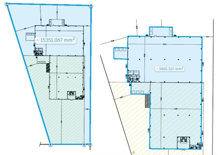
Magazzino n.3
Immobile composto da 5.666 mq di magazzino (con 10 baie di carico) e 466 mq di uffici.
La superficie disponibile è di 2.500 mq.

Magazzino n.8
L'immobile ha una superficie di 12.900 mq ed è dotato di 24 baie di carico ed impianto Sprinkler.
La superficie disponibile è di 2.000 mq.

Sono presenti aree esterne da 30.000 mq, videosorvegliate ed allarmate.

Consegna: novembre 2025.

richiedi costi e disponibilità di questa area logistica

* Campi richiesti